| Опросный лист

Схема Мини-тэц

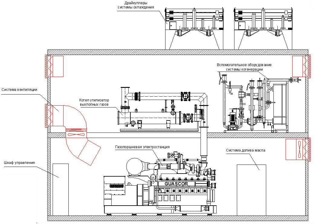
Мини-ТЭЦ (или Мини-ТЭС) это сложная комплексная система, состоящая из большого количества систем (блоков), которые непрерывно взаимодействуют между собой, обеспечивая Вашей Мини-ТЭЦ непрерывное функционирование.

Принципиальную схему Мини-ТЭЦ можно увидеть на приведенном ниже рисунке.

Схема мини-тэц

Для удобства восприятия на схеме не указаны: арматура, трубы, подвод газа, силовые и информационные кабели.

Как видно из схемы, основным элементом Мини-ТЭЦ является газопоршневая электростанция (ГПЭ или ГПУ – газопоршневая установка). В зависимости от необходимой для собственной электростанции мощности, газопоршневой двигатель, который устанавливается в качестве привода на газопоршневой электростанции, может быть L или V-образным, с жидкостным охлаждением. Нагретая двигателем охлаждающая жидкость газопоршневой электростанции и уходящие газы, образующиеся в процессе сгорания газового топлива, используются в Мини-ТЭЦ на полезные нужды – посредством системы утилизации тепла (или когенерации). Система утилизации тепла обычно состоит из теплообменника рубашки охлаждения двигателя, котла-утилизатора выхлопных газов и комплекса вспомогательного оборудования (насосы, расширительные баки и пр.).  Тепло от охлаждающей жидкости передается в контур сетевой воды клиента. Системы утилизации, применяемые в Мини-ТЭЦ, позволяют нагреть сетевой теплоноситель, как до стандартных температурных режимов (90/70), так и даже до температур 100+ градусов, при такой необходимости.

С использованием систем когенерации, суммарный КПД Мини-ТЭЦ может достигать 90%, где порядка 40% - это вырабатываемая газопоршневой электростанцией электроэнергия, а 50% - тепло охлаждающей жидкости и уходящих выхлопных газов. Для обеспечения работы описанной выше системы в схеме Мини-ТЭЦ, помимо уже описанных блоков, обязательно необходимо наличие систем, обеспечивающих работу  Мини-ТЭЦ заданном оптимальном режиме.

Система вентиляции обеспечивает приток воздуха к газопоршневой электростанции, необходимого для отвода тепла излучаемого двигателем, генератором и вспомогательным оборудованием, а также подачу на горение воздуха, с заданными параметрами. Система управления позволяет задавать режимы работы Мини-ТЭЦ, автоматически настраивать параметры, в зависимости от типа подаваемого газового топлива и условий окружающей среды. Система долива масла обеспечивает газопоршневому двигателю автоматическое поддержание уровня масла, восполняя угар.

Драйкуллеры системы охлаждения Мини-ТЭЦ обеспечивают отвод от газопоршневой электростанции избытков тепла охлаждающей жидкости, в том случае, если система когенерации на объекте отсутствует, или в тот момент, когда утилизация тепла не требуется.

×
Loading...